こんにちは。地方移住で新潟県長岡市に注文住宅を建てたばくパパです。
この記事では、新潟県長岡市に注文住宅を建てた我が家の間取りを公開しつつ、実際に設計や間取りを決めた際に感じた絶対にやってはいけないNG行為について触れていきます。
- これから注文住宅を建てるから間取りを参考にしたい
- 設計・間取りをこれから決めていく
そんなあなたに参考になる記事になっているので、ぜひ最後まで読んでもらえたら嬉しいです。

注文住宅の1番楽しくて、1番難しいところでもあるので、参考にしてね!
注文住宅の設計・間取りを決めるときに絶対NGな行為
注文住宅の設計・間取りの打合せ時に絶対NGな行為というのがあります。
それは、間取りを自分で考えることです。

え?何言ってるの?注文住宅なんだから、自分で考えるのが醍醐味でしょ?
そう思ってしまうかもしれませんが、間取りを自分で考えるのは絶対NGです。
私たち施主がやるべきことは、暮らしの目的を設計士に伝えることなんです。
間取りというのは、目的ではなく手段です。
自分の理想の暮らし(目的)を叶えるために間取り(手段)があります。
だから、私たちがやるべきなのはその理想を設計士に伝えることなんです。
間取りを設計してくれる設計士さんはプロです。
私たちは間取りに関しては初心者なので、想像できないと思いますが、間取りを考える上で、住宅性能や換気、耐震強度など、多くのことを考慮しながら間取りを決めていきます。
ここで初心者である僕らが口を挟みすぎると、間取りはいいものになるかもしれませんが、肝心の他の要素がチグハグな家になりかねません。
何かの分野で専門性を持つ人には何となく想像ができると思います。
私もITエンジニアという立場で顧客のシステムの要件を決めることがあるのですが、細かいところを自分で決めたがる人が担当者だとプロジェクトがうまくいかなくなるケースが多々あります。
あなたの大切な家が良いものになるように「暮らしの理想」を伝えることを間取りを決めるときは意識してみてください。
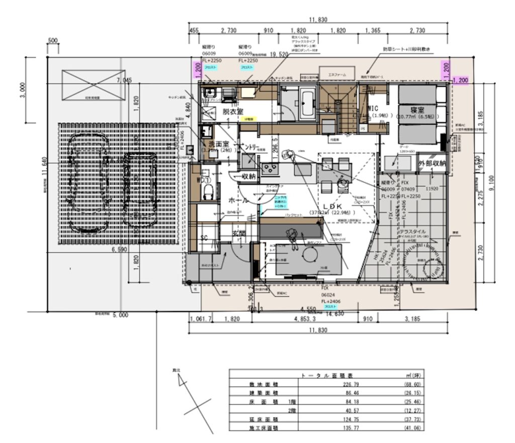
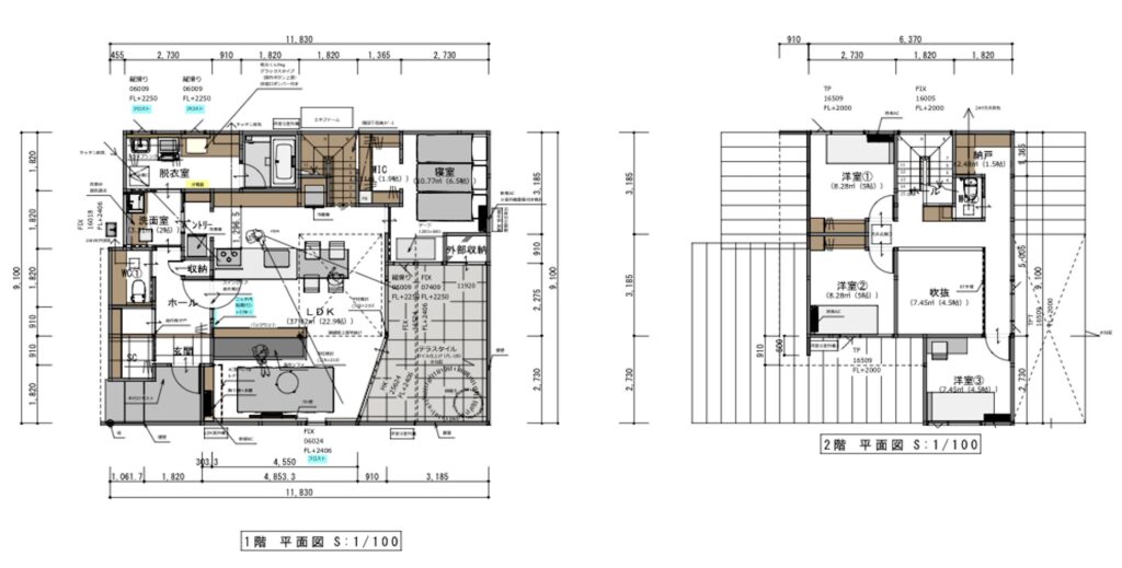
【土地60坪・延床38坪・4LDK】我が家の間取りを公開!
さて、それでは私が設計士に暮らしの理想を伝えながら決まった我が家の間取りを公開します!


間取りについては正解がないので、何とも言えないかもしれませんが、個人的には家族の要望も組み込みながら、なかなか良い間取りにまとまったのではないかと思います。
延床38坪、4LDKの間取りで、現在1歳、2歳の子供が2人いるので、子供部屋を2つ確保しています。
3人目の子供ができたら、私の書斎用に確保した部屋を一時的に子供に譲ろうかと考えています。
間取りを決めるときの私と妻の要望はこんなものを出していました。()内がその要望を伝えた意図です。
- 私の要望
- 広めのテラス(外空間を楽しみたい)
- リモートワーク用の自室(家でも集中して仕事したい)
- 妻の要望
- 1階に主寝室(普段の生活で階段をできれば使いたくない)
- 吹き抜け(子供との繋がり、光の確保)
- 玄関→キッチン、水回りの動線確保(日常の利便性向上)
- 共通の要望
- キッチンを主役にしたい(料理やお菓子作りをよくするから)
細かい要望は打合せをしながら伝えたのですが、大きい要望だとこんなところです。
このような感じでその要望を伝えている意図と一緒に設計士に伝えると、間取りに組み込みつつ、ベストな設計をしてくれるはずです。
設計士との良い関係を築いて理想の間取りを叶えよう
間取りを決めるのは注文住宅の1番の楽しいところだと言っても過言ではありません。
そんな楽しいところだからこそ、設計士との関係性は良いものにして、ベストな間取りを考えてもらってください。
今回の内容は、僕の主観だけではなく、担当してくださった設計士と相談しながら、こういうやり方をすることに決めました。
なので、他の設計士でもこの記事の内容のような要望の伝え方をしてもらった方が、設計をしやすいのではないかと思います。
ぜひ、設計士と良い関係を築いて、理想の間取りを手に入れてください!
それでは、最後まで読んでくださって、ありがとうございました!



コメント