新潟で断熱等級6の住み心地は?夏涼しく冬暖かい注文住宅ルームツアー!

家づくり
記事内に商品プロモーションを含む場合があります

こんにちは、新潟で注文住宅を建てたばくパパです。

この記事では、住宅性能と快適性、そしてデザインを追求した注文住宅を紹介しています。

  • これから注文住宅を建てたい!
  • 快適な注文住宅にするためには何を意識したら良いの?

そんなことを考えている人に参考になっているので、ぜひ最後まで読んでもらえたら嬉しいです。

ばくパパ
ばくパパ

住宅性能と快適性、デザインにこだわった注文住宅を紹介していくよ!!!

はじめに:我が家の家づくりのコンセプト

まず、ルームツアーの前に我が家の家族構成と家づくりのコンセプトを紹介します。

  • 家族構成:30代前半夫婦 / 2歳娘 / 1歳息子 / 小型犬1匹
  • 家の雰囲気:ジャパンディ(和と北欧をミックスしたテイスト)
  • 住宅性能:高気密高断熱(C値0.4 / Ua値0.28)
  • コンセプト:プライベートを意識してのびのびと暮らせる家

家の全体的な雰囲気としては、和と北欧のテイストをミックスしたジャパンディのスタイルにしました。

私がシンプルなデザインが好きだったため、全体のテイストを打合せしているときにコーディネーターの方におすすめされたこのスタイルを選択しています。

住宅性能は耐震等級3相当(多雪地域に分類されるため耐震等級2)で、C値0.4 / Ua値0.28で断熱等級6を実現しています。

住宅性能は注文住宅を検討し始めた頃から、絶対にこだわりたいポイントだったので、満足のいく数値が出てよかったです。

コンセプトとしては、子供がすでに2人いたので、プライベートを意識しつつ、子供たちがのびのびと暮らせる家を目指しました。

全体の間取り

ばくパパ
ばくパパ

まずは全体の間取りを紹介するよ!

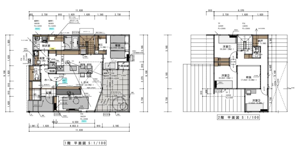
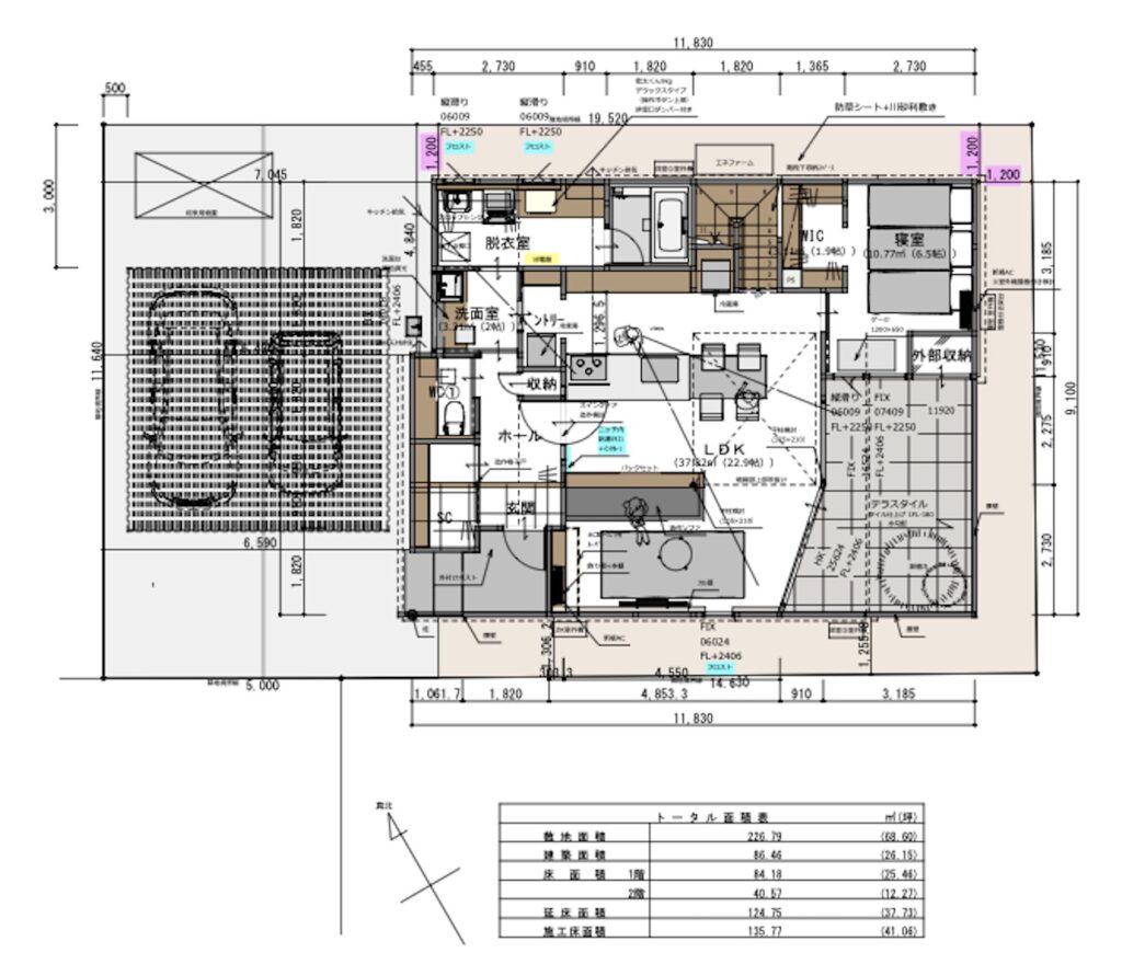
1階間取り(外構含む)
1階 / 2階の間取り

全体としては4LDK + テラスという構成になっていて、延床37坪の住宅になっています。

特徴としては1階寝室になっているのと、LDKに大きめの吹き抜けを設けています。

それでは、各場所をピックアップしながら写真付きでルームツアーをしていきます!

玄関:家の「顔」と土間収納のこだわり

家の「顔」となる玄関は、玄関扉へのアプローチを高い壁と屋根で囲ってもらい、視線が気にならないようにしてもらったのと、雨に濡れないような構造にしてもらいました。

私が建てた新潟県は天気が良くないことが多いので、駐車場から玄関に行っても雨に濡れないような作りにしました。

玄関周りは大きめの 60cm × 60cm のグレーのタイルで仕上げてもらっています。

大きめのタイルはやはり、高級感があるので、玄関などには特におすすめです。

玄関の横の壁はレッドシダーの木材を貼っています。

今はクリアな明るい色ですが、木材は年数が経つごとに変化していくので経年美化を楽しんでいきたいです。

細かいですが、ポストは外付けにしてもらっています。

玄関の壁に穴を開けてしまうと、断熱欠損・気密の低下に繋がるという情報を見て、玄関が寒くなるのは嫌だったので、少しでも快適な家を目指して、外付けポストにしてもらいました。

玄関の中は家族が並んでも渋滞しないように横に広い作りにしています。

右には来客用にコートを掛けられるアイアンバーを設置しました。

左はシューズクロークになっています。

可動棚を設置してもらい、収納する物のサイズや靴の高さに応じて、柔軟に収納を変更できるようにしています。

仕切り壁を設けるか悩んだのですが、使い勝手が悪い気がして、カーテンレールだけ設置してもらい、薄いレースカーテンで目線を遮れるようにしています。

普段はカーテンを寄せておけば、広く玄関が使えるので、仕切り壁などは設置しなくても正解だったな〜と使いながら感じています。

フローリングは1階/2階ともパインの無垢床を採用しているのですが、玄関だけスプーンカットを施した床にしてもらい、和のテイストを感じられるようにしています。

見た目だけではなく、足触りがとても良いので、スプーンカットは採用して本当によかったです。

また、ワンポイントとして、玄関が入ると見える位置に飾り棚を作っています。

間接照明がおしゃれで、季節に合った小物を飾りながら楽しみたいです。(今は子供がおもちゃを飾りたがって置いています)

LDK:家族が集まる吹き抜けのある開放的な大空間

LDKはリビングとダイニングのスペースの間に造作で収納とソファを作ってもらい、空間を緩く仕切るような作りにしています。

リビングスペースは造作ソファを中心にくつろげる空間にしています。

テレビ側は塗り壁にしており、外のテラスも同じ塗り壁にすることで、内と外の繋がりを意識しています。

テラスとは一面、大きな掃き出し窓になっており、リビングの実際の大きさよりも広く感じる空間を意識しました。

テレビは壁掛けにしており、塗り壁の良さを邪魔しないようにしています。

ダイニングはキッチンと横並びの机を採用しています。

この形式はSNSなどでも紹介されていることが多いのですが、配膳や片付けが本当に楽なので、おすすめです。

LDKの上部には4.5畳分の吹き抜けを設けています。

上の窓から入る光でさらに明るくなり、空間も広々感じられ、照明もジャパンディのテイストに合うように選んだので、とても満足度が高いです。

また、吹き抜けのおかげでエアコンを1台稼働させておけば、2階も含めて快適な温度・湿度に保てています。

キッチン:料理好きな夫婦のこだわり

キッチンはタカラスタンダードのオフェリアを採用しています。

天板は、フィオレストーンをオプションでつけてもらいました。

ストーン系の天板は高級感が出て、料理をしていてテンションが上がるので、料理が好きな人は少しお金はかかりますが、おすすめの設備です。

シンク下は開けてもらっており、ゴミ箱を下に設置するスタイルにしています。

どうしても生活感が出てしまうゴミ箱がリビングやダイニングから見えないので、ここの位置のゴミ箱はおすすめです。

また、動線的にもキッチンで出たゴミをそのまま動かずに捨てることができるので、この位置を開けてもらって良かったなと日々実感しています。

食洗機はBOSCH(ボッシュ)の60cm幅を導入しています。

食器や調理器具を入れて、寝る前に回すだけで翌朝にはきれいになった食器が乾いた状態になっているので、本当に導入して良かったなと日々実感しています。

コンロは標準のものではなく、グリルレスの4口コンロを導入しました。

Rinnaiの4口コンロなのですが、見た目もスタイリッシュで小さめの鍋であればフルで4口置くこともできるので、料理もしやすく、キッチンをこだわりたい人にはおすすめの設備です。

カップボードは、吊り戸棚はなしにして、空間がスッキリするように意識しました。

カップボードの家電や冷蔵庫はマットブラックでまとめており、ジャパンディな空間のワンポイントとしています。

キッチン横にはパントリーを設けていて、可動棚で自由に高さを変えられる棚にしています。

棚には無印良品のファイルボックスのハーフサイズを置いて、キッチンで使うものを収納しています。

また、パントリーにセカンド冷凍庫が収まるように設計してもらいました。

水回り・ランドリールーム:徹底的に考え抜いた動線

水回りは、玄関やキッチンからアクセスしやすいような動線を意識しています。

トイレは玄関に1番近い位置に配置しており、出かける前にトイレに行きたくなってもすぐに駆け込める位置にあります。

ちなみにトイレはワーロンという素材で造作で照明を作ってもらい、ジャパンディのスタイルに合うトイレに仕上がっています。

ワーロン紙を照明との間に挟むことによって、照明がほわっと柔らかい印象になり、落ち着きのあるトイレになっています。

トイレの便器は1階はタンクレストイレを採用しています。

賛否両論あるタンクレストイレですが、空間が洗練されるので、やはり少し値が張ったり、メンテナンスに難があるとわかっていても、採用してよかったなと感じています。

トイレの隣は、洗面スペースにしており、トイレ内に手洗い器を設置しなくて住むような動線を意識しました。

洗面スペースは造作洗面になっており、アイカ工業の洗面ボウルを採用しています。

鏡はスライドできる扉になっており、正面に化粧品類や歯ブラシなどを隠して収納できるようにしました。

ランドリールームは洗濯機、乾太くん、スロップシンク、前後に稼働できる物干し竿を設置しており、ランドリールームを設置するかを検討する設備はほぼ設置しています。

また、乾太くんを設置する棚は造作してもらい、お風呂で使う着替えやタオルはここの棚にすぐに収納できるような動線にしました。

乾太くんは9kgのデラックスタイプを採用しており、この設備は本当に採用してよかったなと日々実感しています。

洗濯が終わったら、乾太くんに入れるだけで、60分前後でカラッと乾いたホカホカの洗濯物が出来上がり、あとは畳めば、洗濯が済んでしまいます。

賃貸に住んでいた頃は、洗濯が終わったものをハンガーにかけて、乾きやすいように気にかけて、乾いたかを確認しながら、乾いたらハンガーから外し、畳んでしまって…という工程をしていたのですが、乾太くんを使い始めたら、この便利さは絶対に手放せないと思ってしまいます。

スロップシンクも悩んだ末に採用しました。

これも採用してよかったなと感じています。

まだ子供が小さいのと、ペットもいるので汚れ物が出ることが多く、スロップシンクに投げておいて、洗濯の前に洗ってから洗濯機に投げ込むということができるので、かなり便利だと実感しています。

子供が大きくなってからも、汚れた衣服や汗まみれの衣服も頻繁に出ると思うので、これからも存分に活躍してくれると思います。

テラス:高い壁で叶えた完全プライベートテラス

テラスはリビングの掃き出し窓から出ることができるようになっています。

テラス空間は外壁と同じガルバリウム合板の白い壁で3mほどの高さで囲ってもらっており、完全にまわりからの視界を遮って、プライベート空間を実現しています。

まだ引っ越してから寒い時期が続いているので、あまり使えていませんが、暖かくなったら、ここで読書をしたり、子供のプールを出したり、人を呼んでバーベキューをしようかと考えています。

テラスには水栓やコンセントも完備しているので、いろいろな使い方をできそうで、今からとても楽しみです。

軒も深く出してもらっているので、暑い時期でも日を遮ることができそうです。

また、軒の部分にはタープ用の金具を設置しており、日が強い時期でもテラスを使いやすいように意識しました。

外部収納も設けており、ここにテラスで使う椅子や机、バーベキューグッズなどを収納できます。

プライベート空間:寝室・子供部屋・書斎

プライベート空間としては、1階の主寝室、子供部屋×2、書斎を設けています。

主寝室は妻の要望で1階に設けており、シングルのマットレスが3枚敷くことができるように設計してもらいました。

子供が小さいうちは3枚のシングルのマットレスと敷いて、みんなで寝れるようにして、子供が大きくなってからも夫婦で広く使えるように意識しています。

また、ペットがいたので、同じ空間で寝れるようにサークルを置けるスペースを設けました。

小さいですが、ウォークインクローゼットも設けており、衣服や大きいものでも収納できるようにしました。

子供部屋は将来、子供が大きくなったら使ってもらう予定で、ハンガーラックを設置したシンプルな空間にしています。

子供が出て行った後のことも考えて、大きい1つの部屋にしようか悩んだのですが、最初から壁で仕切り、それぞれのプライベートが守られるように2部屋にしました。

また、エアコンは後から設置できるようにコンセントの位置などを最初から計画しています。

書斎も1部屋確保しており、私がフルリモートで家で仕事しているのと、パソコンを触っていることが多いので、どうしても1部屋確保させてもらっています。

部屋自体はシンプルな部屋になっており、机も昇降デスクを使いたかったので、造作で作ったりはしませんでした。

まとめ:住んでわかった「成功ポイント」と「後悔ポイント」

ばくパパ
ばくパパ

以上、デザインと住宅性能、住みやすさに徹底的にこだわった我が家の紹介でした!

注文住宅を建てて、実際に住んでみた成功のポイントは、一緒に設計・コーディネートしてくれる方を信頼することだと感じました。

SNSなどで気軽に注文住宅の情報を入手できるようになりましたが、どこまで情報を仕入れても、私たちは「家づくり」に関しては素人です。

多くのお客様と向き合い、時間を使い、手を動かし続けている現場の方と比べれば、一次情報が圧倒的に少ないと思います。

そうした中で、SNSで仕入れた情報を鵜呑みにするのではなく、担当者の方に話して、議論してみることをおすすめします。

デザインや住宅性能の部分でも、これをやったおかげでより良い選択ができたことが多かったです。

また、紹介してきた家について、ほぼ満足はしているのですが、住んでみて後悔したポイントをあげるとすると、2つあります。

1つ目が床材についてです。

我が家では、パインの無垢床を1階/2階で採用しており、木の温かみと柔らかさを感じられ、思わず素足で過ごしたくなるほど心地がいいのですが、一点気になる点が…

傷がつきやすいこと…

特に我が家は、1歳/2歳の子供がいるので、容赦無くおもちゃを叩きつけて、よく遊んでいるところの床は入居1ヶ月でこの有様です…。

無垢床だとある程度は自分で修復できたりするのですが、まだまだ頻繁に傷つけそうなので、子供が大きくなってからまとめて修復してみようかなと考えています。

2つ目はカップボードについてです。

照明の位置やカップボードの色自体はとても満足しているのですが、問題は天板の色…

キッチン側はフィオレストーンを採用したのですが、カップボードはケチって標準の白の天板にしました。

我が家はクロスの色を白ではなく、白とグレーの中間のような色味にしているのですが、そのせいで白の天板がすごく浮いてしまっています…。

おそらく言わなければ誰も気づかないくらいの差なのですが、カップボードもキッチンの天板と合わせても良かったかな〜と思っています。

これから注文住宅を予定している人は、ぜひデザインや住宅性能の参考にしていただければと思います。

私のブログでは家づくりの流れや住宅ローンのことも解説しているので、ぜひ他の記事も覗いてください。

また、私と同じく新潟県内で注文住宅を検討している人に朗報です!

私が建築を依頼したディテールホームで家を建てる場合、私からの紹介で住宅設備のオプション30万円分が付きます。

私の家を設計・コーディネートしてくれた方を指名することもできるので、もし気になる人はお問い合わせより、メールをいただければと思います。

それでは、最後まで読んでくださって、ありがとうございました!

コメント

タイトルとURLをコピーしました